The Beginning
北京顺义区双裕南小街一号院公租房项目租金及位置
申请时间:2021年4月26日10:00-4月28日17:00
一、基本信息
项目名称:双裕南小街一号院
开发单位:北京东方京海投资有限公司
项目位置:顺义区后沙峪镇双裕南大街
装修标准:精装修
租金单价:35元/建筑平米·月(不分楼层、朝向)
价格说明:租金单价中包含物业费,不包含供暖费、水费、电费、燃气费、电话费、上网费、电视收视费等费用。
供暖方式:小区集中供暖
签约时间:详见选房确认单
二、项目配套情况
周边交通:本项目紧邻京密路,向北步行700米为地铁15号线后沙峪站,乘坐空港3路、顺26路、顺27路、顺38路等均可直达。
周边商业:本项目周边配有生活超市、银行储蓄、肯德基、等。
医疗设施:本项目周边配有空港医院、便民药店、加油站等,距离顺义医院、中医院、妇幼保健院车程约30分钟。
文化教育:本项目周边教育有顺义区第十中学、万科城市花园幼儿园、育才双语幼儿园等。
三、项目办公
办公地址:4号楼203
办公电话:60401520
办公时间:周一至周五,8:30-11:30 13:30-17:30
四、物业服务
物业单位:北京一卡通物业管理有限公司
物业地址:双裕南小街2号院海航国兴城南区3号楼地下一层
物业电话:61460257
办公时间:周一到周日早8:00-晚8:00
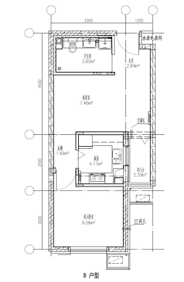
户型图




