The Beginning
北京顺义区张镇公租房房源租金及位置信息
申请时间:2021年4月26日10:00-4月28日17:00
一、基本信息
项目名称:北京市顺义区张镇居住(地块一)项目二期公租房项目(林秀西路1号院二区)
开发单位:北京天正华特房地产开发有限公司
项目位置:顺义区张镇
装修标准:精装修
租金单价:15.1元/建筑平米·月(不分楼层、朝向)
价格说明:租金单价中包含物业费,不包含供暖费、水费、电费、燃气费、电话费、上网费、电视收视费等费用。
供暖方式:小区集中供暖
签约时间:详见选房确认单
二、项目配套情况
周边交通:本项目临近顺平路,乘坐918路公交,郊区99路、顺39路、向南步行1000米,顺19路可到达浅香北街向南步行500米。
周边商业:本项目周边配有生活超市、药店。
医疗设施:本项目周边配有浅山香邑社区卫生服务站、镇中心有张镇卫生院。
文化教育:本项目周边教育有张镇中心第一幼儿园、张镇小学、张镇中学。
三、项目办公
办公地址:3号楼1单元103
办公电话:6148 3822
办公时间:周二至周六,8:00-11:30 13:30-17:00
四、物业服务
物业单位:北京康乐物业管理有限公司
物业地址:林秀西路1号院二区5号楼
物业电话:6148 4908
办公时间:周一到周日 8:00-11:30 13:30-17:30
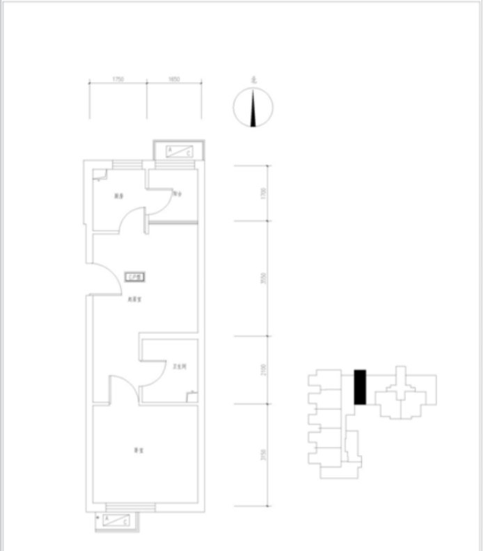
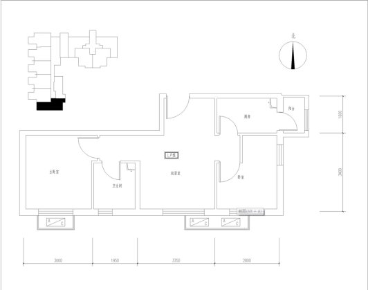
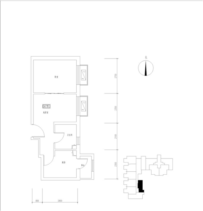
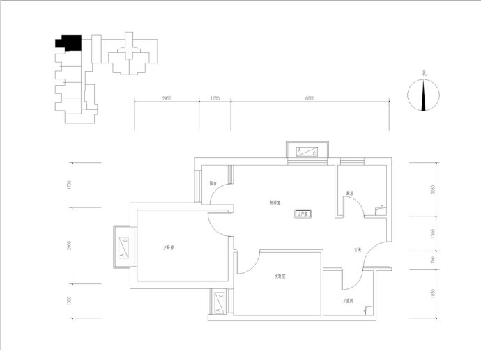
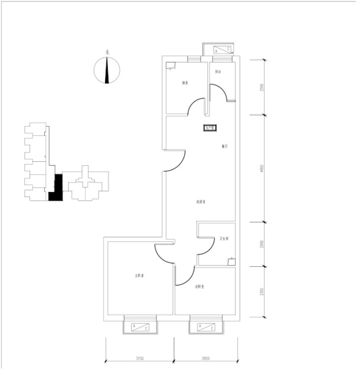
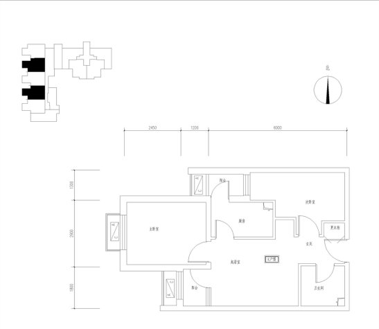
户型图
F户型
G户型
J户型
K户型
L户型
M户型
N户型




