首页 > 百科 > 地方特产

无锡共有产权房户型图(无锡共有产权房在哪些小区2020)

来源: 更新时间:2022-09-18 05:37:08
The Beginning

  无锡共有产权房户型图lWH育儿早教网

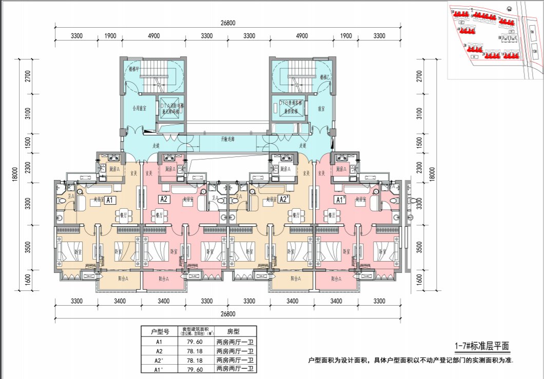
  无锡首批共有产权保障房项目户型图来了。lWH育儿早教网

  惠景家园二期、龙塘岸后五巷B块是无锡首批共有产权保障房项目,目前已正式进入工程施工阶段。2021年1月7日,无锡市住建局网站公布了惠景家园二期、龙塘岸后五巷B块两个共有产权保障房项目的户型。lWH育儿早教网

  惠景家园二期点击查看大图lWH育儿早教网

   lWH育儿早教网

   lWH育儿早教网

   lWH育儿早教网

  龙塘岸后五巷B块保障房彩总户型点击查看大图lWH育儿早教网

   lWH育儿早教网

   lWH育儿早教网

   lWH育儿早教网

THE END

TAG:无锡  二期  产权  点击查看  首批  

猜你喜欢

相关文章