➤项目基本情况
未来慧园项目位于昌平区北七家镇未来科学城南区C-16地块R2二类居住用地,项目四至:东至鲁疃东路,南至英才南二街,西至鲁疃路,北至英才南一街。
项目规划总建筑面积174620.32平方米,地上建筑面积106815平方米,地下建筑面积67805.32平方米,其中共有产权住房建筑面积102642.4平方米,房屋为全装修交房。本次配售房源为1061套,其中约88平方米两居809套、约119平方米三居252套。含全装修费用销售均价32000元/平方米(根据具体楼层、朝向在±5%的范围内调整销售价格)。
➤户型数据:
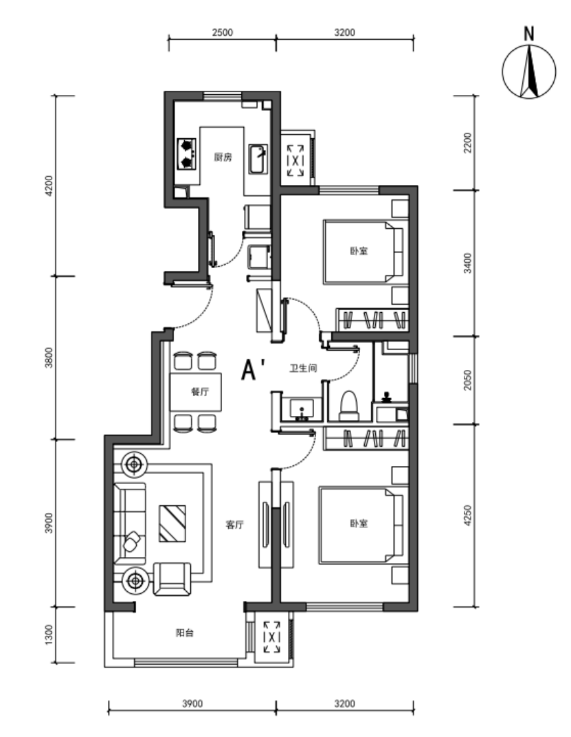
A/ A(反)、A´/ A´(反)户型(两居):约88平方米共809套,分布于1-5#、9#、10#、13-16#住宅楼。窗户材质为中空玻璃塑钢窗,客厅窗洞宽约2.4米×高约 1.7米;卧室窗洞宽约1.8米×高约 1.5米,宽约1.4米×高约1.5米;厨房窗洞宽约0.9米×高约1.5米;卫生间:暗卫;部分户型卫生间窗洞宽约0.7米×高约1.5米;
B/ B(反)、B´/ B´(反)户型(三居):约119平方米共252套,分布于6#、7#、8#、11#、12#住宅楼。窗户材质为中空玻璃塑钢窗,客厅窗洞宽约2.4米×高约1.7米;卧室窗洞宽约2.1米×高约1.5米,宽约 1.4米×高约1.5米,宽约2.4米×高约1.5米;厨房窗洞宽约0.7米×高约 1.5米;卫生间:暗卫;部分户型卫生间窗洞宽约0.7米×高约1.5米;
注:以上数据最终以规划部门审批结果为准,如有变更我司将及时公告。
➤户型图:
A户型
A´户型
B户型
B´户型
图源为:北京市昌平区人民政府
以上反户型为对应户型型号的镜像户型
以上全部户型图仅供参考,相同户型单位因楼栋、楼层、单元等差别,局部结构、面积等可能不同,最终以买卖合同约定为准。户型图所示尺寸及尺寸比例仅为参考示意,具体户型细节、交房尺寸和面积等均以买卖合同约定为准。图中所示的装修、家具、电器等设备设施物品仅为示意,不属于交付内容和交付标准,最终以买卖合同约定为准。




