➤2022年7月北京平谷晟贤悦府共有产权房房源信息
晟贤悦府共有产权住房项目,地上建筑面积约7.67万平方米,位于北京市平谷区马昌营镇东北部,用地容积率2.5,绿地率约30%,建筑密度约22%。共有产权住房共8栋楼。楼号分别为1#楼、2#楼、3#楼、4#楼、5#楼、6#楼、7#楼、8#楼。
1号楼共2个单元。建筑层数为地下3层,地上18层,建筑高度53.1米,层高为2.9米,全部为共有产权住房。
2号楼共2个单元。建筑层数为地下3层,地上15层,建筑高度44.4米,层高为2.9米,首层局部为物业管理用房,其余全部为共有产权住房。
3号楼共2个单元。建筑层数为地下3层,地上12层,建筑高度35.7米,层高为2.9米,全部为共有产权住房。
4号楼共2个单元。建筑层数为地下2层,地上11层,建筑高度32.8米,层高为2.9米,全部为共有产权住房。
5号楼共2个单元。建筑层数为地下2层,地上11层,建筑高度32.8米,层高为2.9米,全部为共有产权住房。
6号楼共2个单元。建筑层数为地下3层,地上18层,建筑高度53.1米,层高为2.9米,全部为共有产权住房。
7号楼共2个单元。建筑层数为地下3层,地上18层,建筑高度53.1米,层高为2.9米,全部为共有产权住房。
8号楼共2个单元。建筑层数为地下3层,地上15层,建筑高度44.4米,层高为2.9米,全部为共有产权住房。
梯户比:1号楼、2号楼、3号楼、6号楼、7号楼、8号楼均为两梯四户;4号楼、5号楼均为一梯两户。
户型:
A户型(两居室):建筑面积约82平方米,共190户。
A户型位于1#楼1单元、2单元1-18层,2#楼1单元、2单元2-15层,3#楼1单元、2单元1-12层,6#楼1单元、2单元1-18层,7#楼1单元、2单元1-18层,8#楼1单元、2单元1-15层。
B户型(两居室):建筑面积约84平方米,共190户。
B户型位于1#楼1单元、2单元2-18层,2#楼1单元、2单元1-15层,3#楼1单元、2单元1-12层,6#楼1单元、2单元1-18层,7#楼1单元、2单元1-18层,8#楼1单元、2单元1-15层。
B反户型(两居室):建筑面积约84平方米,共189户。
B反户型位于1#楼1单元、2单元2-18层,2#楼2单元2-15层、1单元1-15层,3#楼1单元、2单元1-12层,6#楼1单元、2单元1-18层,7#楼1单元、2单元1-18层,8#楼1单元、2单元1-15层。
C户型(三居室):建筑面积约88平方米,共192户。
C户型位于1#楼1单元、2单元1-18层,2#楼1单元、2单元1-15层,3#楼1单元、2单元1-12层,6#楼1单元、2单元1-18层,7#楼1单元、2单元1-18层,8#楼1单元、2单元1-15层。
D户型(三居室):建筑面积约110平方米,共44户。
D户型位于4#楼1单元、2单元1-11层,5#楼1单元、2单元1-11层。
D反户型(三居室):建筑面积约110平方米,共44户。
D反户型位于4#楼1单元、2单元1-11层,5#楼1单元、2单元1-11层。
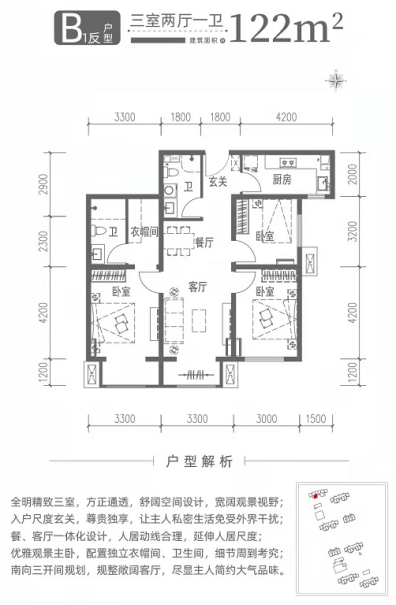
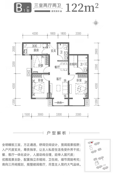
B1户型/B1反户型(三居室):建筑面积约122平方米,共2户。
B1户型位于1#楼2单元1层,B1反户型位于1#楼1单元1层。
B2户型(三居室):建筑面积约127平方米,共1户。
B2户型位于2#楼2单元1层。
注:以上数据最终以规划部门审批结果为准,如有变更我司将及时公告。
户型图:
A户型(190套)
建筑面积约:82㎡
户型位置:
A户型位于1#楼1单元、2单元1-18层,2#楼1单元、2单元2-15层,3#楼1单元、2单元1-12层,6#楼1单元、2单元1-18层,7#楼1单元、2单元1-18层,8#楼1单元、2单元1-15层。
B户型(190套)/B反户型(189套)
建筑面积约:84㎡
户型位置:
B户型位于1#楼1单元、2单元2-18层,2#楼1单元、2单元1-15层,3#楼1单元、2单元1-12层,6#楼1单元、2单元1-18层,7#楼1单元、2单元1-18层,8#楼1单元、2单元1-15层。
B反户型位于1#楼1单元、2单元2-18层,2#楼1单元1-15层、2单元2-15层,3#楼1单元、2单元1-12层,6#楼1单元、2单元1-18层,7#楼1单元、2单元1-18层,8#楼1单元、2单元1-15层。
C户型(192套)
建筑面积约:88㎡
户型位置:
C户型位于1#楼1单元、2单元1-18层,2#楼1单元、2单元1-15层,3#楼1单元、2单元1-12层,6#楼1单元、2单元1-18层,7#楼1单元、2单元1-18层,8#楼1单元、2单元1-15层。
D户型(44套)/D反户型(44套)
建筑面积约:110㎡
户型位置:
D户型/D反户型位于4#楼1单元、2单元1-11层,5#楼1单元、2单元1-11层。
B1户型(1套)/B1反户型(1套)
建筑面积约:122㎡
户型位置:
B1户型位于1#楼2单元1层,B1反户型位于1#楼1单元1层。
B2户型(1套)
建筑面积约:127㎡
户型位置:
B2户型位于2#楼2单元1层。




