北京京能京西房地产开发有限公司开发建设的西山印嘉园共有产权房项目,现开放申购登记,登记时间为2022年4月8日上午10点至2022年4月27日下午17点。
一、项目基本情况
门头沟区西山印嘉园共有产权房项目位于门头沟区龙泉镇。项目四至:东至规划龙门南街,西至惠泽家园,南至规划门头沟北街,北至规划石港路、平洞西街。
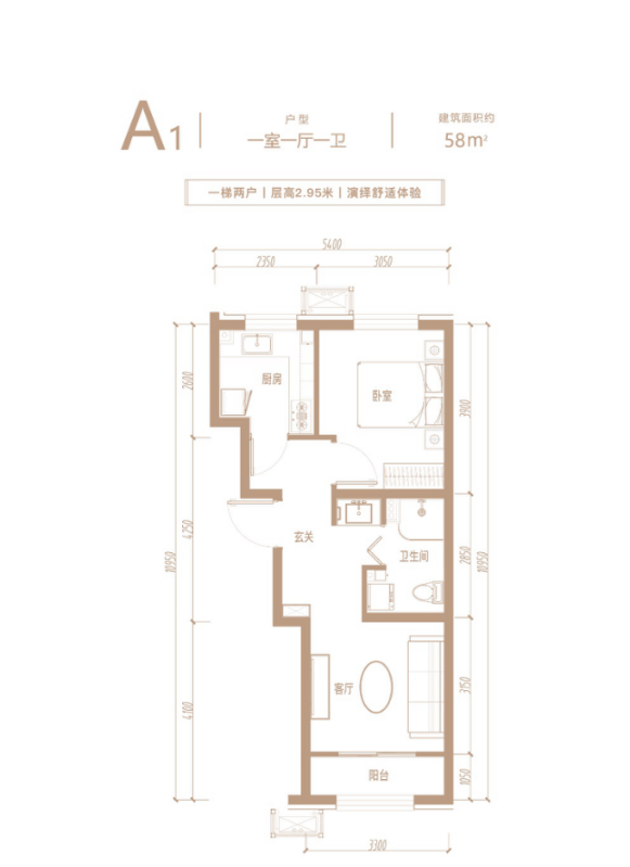
建设用地面积154004.04㎡,地上建筑控制规模209367.00㎡(其中住宅198730.98㎡、居住公共服务设施10030.00㎡、消防水箱间79.30㎡、人防工程222.91㎡、门房及出地面竖井303.81㎡),销售均价29500元/㎡(含全装修费用)。全盘套型主要为约58㎡一居28套、约72㎡两居14套、约80㎡两居704套、约89㎡三居1262套、约115㎡四居244套,总套数2252套。
本次配售6010地块、6011地块,房源共计1230套,其中,约58㎡一居11套、约72㎡两居8套、约80㎡两居291套、约89㎡三居800套、约115㎡四居120套。
二、销售条件
(一)申请购买本市共有产权住房的家庭,应符合以下条件。
1.申请人应具有完全民事行为能力,申请家庭成员包括夫妻双方及未成年子女。单身家庭申请购买的,申请人应当年满30周岁。
2.申请家庭应符合本市住房限购条件且家庭成员在本市均无住房。一个家庭只能购买一套共有产权住房。
(二)有以下情形之一的,不得申请购买共有产权住房。
1.申请家庭已签订住房购买合同或征收(拆迁)安置房补偿协议的。
2.申请家庭在本市有住房转出记录的。
3.有住房家庭夫妻离异后单独提出申请,申请时点距离婚年限不满三年的。
4.申请家庭有违法建设行为,申请时未将违法建筑物、构筑物或设施等拆除的。
申请家庭承租公共租赁住房、公有住房(含直管和自管公房等)后又购买共有产权住房的,应在购房合同网签前书面承诺腾退所租住房屋。
三、房源安排及销售对象
本项目房源安排,将结合门头沟区功能定位和发展方向、项目申购登记家庭数量等因素综合确定,并在摇号公告中予以公示。本项目配售对象如下:
(一)京籍无房家庭。
第一组:门头沟区户籍和在门头沟区工作的京籍家庭;
第二组:本市东城区、西城区、朝阳区、海淀区、丰台区、石景山区户籍或在此六区工作的京籍家庭;
(二)非京籍无房家庭。
第一组:申请人在门头沟区工作并且其所在企业为以下四类:
(1)、符合门头沟区功能定位、发展方向和引才需要的企业和单位;
(2)、在截止申购时,前三年在本区内累计纳税1500万元人民币以上(含)且目前仍在正常经营的企业;
(3)、在门头沟区实地经营的国高新、村高新企业及经市级以上认定的创业服务机构;
(4)、从外省市引进的重点企业。
(重要提示:申请家庭需在2022年4月27日17:00前,向所在企业申报家庭信息。申请家庭所在企业需于2022年5月7日17:00前持申报家庭明细及企业营业执照(复印件加盖企业公章)向区住建委进行申报,相关材料由北京京能京西房地产开发有限公司代为收取。申报企业可采用快递、闪送、邮寄等方式送达。邮寄地址:北京市门头沟区滨河路45号院3号楼首层商业京能·西山印接待中心,联系人:刘彬 电话:13811014906)
第二组:其他在门头沟区工作的申请家庭;
第三组:在东城区、西城区、朝阳区、海淀区、丰台区、石景山区工作的非京籍家庭。
“在门头沟区工作”的审核认定标准为2022年3月申请人在北京市个人社保权益记录中所载明的缴费区为门头沟区。
“在东城区、西城区、朝阳区、海淀区、丰台区、石景山区工作”的审核认定标准为2022年3月申请人在北京市个人社保权益记录中所载明的缴费区为上述六区中任一区。
四、共有份额比例的确定
根据《北京市共有产权住房管理暂行办法》(京建法〔2017〕16号)的规定,该项目产权份额的确定情况如下:
(一)共有份额比例确定原则
该项目的房屋产权由购房人与政府按份额共有,确定原则按照《北京市共有产权住房管理暂行办法》(京建法〔2017〕16号)第十八、十九条执行,其中政府产权份额由北京市门头沟区保障房建设投资管理公司代持有。
(二)共有份额比例评估及确定结果
该项目申购前,北京市门头沟区保障房建设投资管理公司已经委托房地产评估机构完成对购房人与政府共有份额比例的评估,根据《北京市共有产权住房管理暂行办法》(京建法〔2017〕16号)及评估报告,该项目单套住房的购房人产权份额比例为85%,北京市门头沟区保障房建设投资管理公司(政府产权份额代持机构)持有剩余15%份额。
举例:若购房家庭选择了一套建筑面积为80㎡,销售价格为29500元/㎡的房屋,则该家庭需支付的购房款为80㎡×29500元/㎡=2360000元,该家庭所占该套房屋产权份额比例为85%。
五、资格审核
(一)网上申购结束后,对申请购买家庭购房资格进行联网审核。审核工作结束后,审核结果将在北京市门头沟区政府网站进行公示。对审核结果有异议的家庭可向区住房保障管理部门申请复核。
经审核,申请家庭信息不符合本项目申购条件或与承诺不符的,不纳入摇号范围。
(二)选房结束后,对选房家庭购房资格再次进行联网审核。凡申请家庭信息不符合本项目申购条件或与承诺不符的,不得签约,取消本项目购买资格。
六、销售监管
(一)为确保共有产权住房销售工作公平、公正,共有产权住房摇号、选房过程由公证机关全程公证。门头沟区住房保障部门将对销售工作全程进行监管。
(二)申购家庭应在申购阶段如实填写家庭信息,并据实承诺符合本次申购相关条件。选房前提交的纸质材料应与网申家庭信息保持一致。对通过隐瞒家庭住房状况、伪造相关证明等方式,弄虚作假,骗购共有产权住房的家庭,一经查实,严格按照《北京市共有产权住房管理暂行办法》取消其资格,禁止其十年内再次申请本市各类保障性和政策性住房;由开发企业与其解除合同、并由购房家庭承担相应的违约责任和法律责任。
(三)对有关单位和开发企业工作人员在共有产权住房资格申请、审核、公示、摇号、销售、退出等过程中,玩忽职守、滥用职权、徇私舞弊的,依法追究行政责任;构成犯罪的,移交司法机关依法追究刑事责任。
七、需要说明的问题
(一)本项目签订三方合同,其中甲方(出卖方)为北京京能京西房地产开发有限公司,乙方为购房人,丙方(政府份额代持机构)为北京市门头沟区保障房建设投资管理公司,其中北京京能京西房地产开发有限公司负责履行开发建设、销售实施、收取购房款并出具相关发票、前期物业、房屋交付、产权办理、工程质量保修等工作。丙方代表政府持有共有产权住房政府份额,并按照有关规定和合同约定负责具体管理服务工作。
(二)西山印嘉园项目、房源、户型及合同等信息由北京京能京西房地产开发有限公司提供,仅供参考。
(三)《关于印发<北京市共有产权住房规划设计宜居建设导则(试行)>的通知》(京建法〔2017〕20号)适用本项目。
(四)购房人取得的房屋产权性质为:“共有产权住房”,房屋再上市等后续管理按照共有产权住房相关规定执行。
(五)本项目支持公积金贷款、商业贷款、组合贷。
(六) 本公告由门头沟区住房保障办公室解释。
项目《北京市共有产权住房预售合同》已在网上公示。
(合同链接:https://pan.baidu.com/s/1LxVZfRG8LVsmkb7d9dI63g ,提取码:ckt8,如对预售合同有修改意见,请发送至电子邮箱jnxsyjy@163.com。最终以甲乙丙三方签订的预售合同为准。)
网上申购地址:http://gycq.zjw.beijing.gov.cn
咨询热线(开发企业):010-69855558(早9:00-晚17:00)
监督电话:010-69838422 010-69842655 (上午9:00-11:30下午13:30-17:30,工作日)
疫情期间,为避免人员聚集,申购家庭可关注微信公众号“京能西山印”查看项目信息,具体可详询:010-69855558。
现场参观样板间家庭须提前与开发企业电话预约,预约电话:010-69855558 ,如申购家庭未预约到场将不予接待。到场申购家庭户须佩戴口罩,售楼处入口处已设置测温消毒区,严格筛查并做好登记,项目会按照北京市疾病预防控制中心要求进行疫情防控,请到访人员给予配合。体温<37.2摄氏度,并进行“北京健康宝”、“通信大数据行程卡”绿码核验,实名登记后进入接待中心。
西山印嘉园共有产权住房项目信息公示
项目名称:京能·西山印(备案名:西山印嘉园)
企业名称:北京京能京西房地产开发有限公司
项目四至:本项目位于门头沟区龙泉镇。东至规划龙门南街,西至惠泽家园,南至规划门头沟北街,北至规划石港路、平洞西街。
本次配售6010地块、6011地块,房源共计1230套,其中,约58㎡一居11套、约72㎡两居8套、约80㎡两居291套、约89㎡三居800套、约115㎡四居120套。
容积率:1.4
销售均价:29500元/平方米(全装修)
申购地址:北京市门头沟区滨河路45号院3号楼首层商业(京能·西山印接待中心)
申购热线: 010-69855558(早9:00-晚17:00)
项目官方公众号二维码:点击查看
位置图
西山印嘉园共有产权房项目介绍
项目介绍:京能·西山印(备案名:西山印嘉园)共有产权房项目位于北京市门头沟区龙泉镇门头沟路47号,距区政府约3公里,紧邻九龙山和黑河沟,项目规划地上建筑面积约209367.00㎡,其中共有产权住房地上建筑面积约198730.98㎡,容积率1.4,住宅部分均为共有产权住房,销售均价29500元/㎡(全装修)。
周边交通:
主干道:门头沟路、新桥大街、双峪路、石担路、长安街西延线、阜石路、莲石路、西六环、西五环。
公交路线:992路、960路、M25路、370路、370路区间,快速公交4线。
周边配套
商业:中昂时代广场、国泰百货、双峪物美大卖场等。
医疗:京煤集团总医院、门头沟区医院、门头沟区中医医院等。
教育:东辛房小学、京师实验小学、大峪二小、京师实验中学、景山学校门头沟校区(在建中)等。
银行:北京银行、中国邮政储蓄银行、中国建设银行、华夏银行、工商银行等。
自然资源:永定河公园、滨河世纪广场公园、葡山公园、黑山公园、中门寺生态园等。
户型图:
注:以上数据最终以规划及住建委等相关部门审批结果为准。




