➤2022年4月北京大兴区兴海星光里共有产权房户型图
(所有户型在所属楼栋边户为明卫,中间户为暗卫。图中黑色实心为承重墙体)
A/A反户型
建筑面积:约78㎡
户型位置:
1号楼02、03户1-15层;3号楼02、03户1-14层;6号楼一单元02户1-15层、03户2-15层,二单元02户1-15层、03户2-15层,三单元02户2-15层、03户1-15层;7号楼02户2-15层、03户1-15层;10号楼02户1-9层、11-15层,03户2-9层、11-15层;
11号楼02、03户1-15层;15号楼02户1-14层、03户2-14层;
16号楼02、03户1-15层。
B1/B1反户型
建筑面积:约89㎡
户型位置:
8号楼02户2-15层、03户1-15层;
12号楼02、03户1-15层;
13号楼02户2-14层、03户1-14层。
B2/B2反户型
建筑面积:约89㎡
户型位置:
1号楼01户1-15层(明卫)、04户1-15层(明卫);3号楼01户1-14层(明卫)、04户1-14层(明卫);6号楼一单元01户1-15层(明卫)、04户1-15层,二单元01户、04户1-15层,三单元01户1-15层,04户1-15层(明卫);7号楼01户1-15层(明卫)、04户1-15层(明卫);10号楼01户1-8层(明卫)、11-15层(明卫),04户1-8层(明卫)、11-15层(明卫);11号楼01户1-15层(明卫)、04户1-15层(明卫);15号楼01户1-14层(明卫)、04户1-14层(明卫);16号楼01户1-15层(明卫)、04户1-15层(明卫)。
B3/B3反户型
建筑面积:约89㎡
户型位置:
4号楼一单元01户1-11层(明卫)、02户1-11层,二单元01、02户1-11层,三单元01户1-11层,02户1-11层(明卫);
14号楼一单元01户1-11层(明卫)、02户1-11层,二单元01、02户1-11层,三单元01、02户1-11层,四单元01、02户1-11层,五单元01户1-11层,02户1-11层(明卫)。
C/C反户型
建筑面积:约113㎡
户型位置:
8号楼01户1-15层(明卫)、04户1-15层(明卫);
12号楼01户1-15层(明卫)、04户1-15层(明卫);
13号楼01户1-15层(明卫)、04户1-14层(明卫)。
D/D反户型
建筑面积:约119㎡
户型位置:
2号楼一单元01户2-14层(明卫)、02户1-14层,二单元01户2-14层、02户1-14层,三单元01户1-14层、02户2-14层(明卫);
5号楼一单元01户2-11层(明卫)、02户1-11层(明卫);
9号楼一单元01户1-13层(明卫)、02户2-13层,二单元01户2-13层、02户1-13层(明卫)。
E/E反户型
建筑面积:约64㎡
户型位置:
6号楼一单元1层03户,6号楼二单元1层03户,6号楼三单元1层02户;
7号楼一单元1层02户;
10号楼一单元1层03户;
15号楼一单元1层03户。
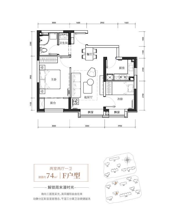
F户型
建筑面积:约74㎡
户型位置:
8号楼一单元1层02户;
13号楼一单元1层02户。
G/G反户型
建筑面积:约106㎡
户型位置:
5号楼一单元1层01户(明卫);
9号楼一单元1层02户,9号楼二单元1层01户。
H/H反户型
建筑面积:约104㎡
户型位置:
2号楼一单元1层01户(明卫),二单元1层01户,三单元1层02户(明卫)。
>>点击查看:




