The Beginning
厦门龙秋公寓公租房户型图(单间公寓+一房型)
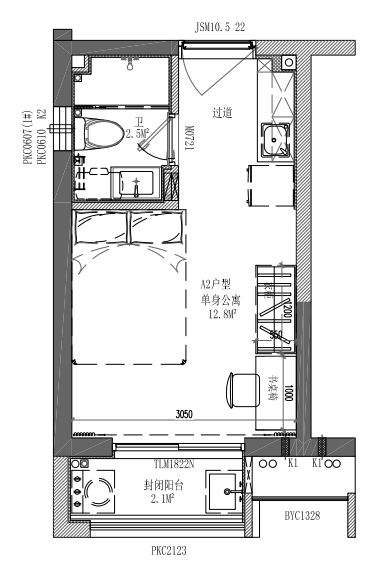
单间公寓
市场租金标准:862.1~919.5 元/月/套
租金优惠比例:市场租金标准X30%
市场租金标准单价:28.9元/㎡/月
一房型 - 龙秋公寓
市场租金标准:1294.1~1349.1 元/月/套
租金优惠比例:市场租金标准X30%
市场租金标准单价:28.9元/㎡/月
地址:龙秋北里1-7号
电话:0592-5900836
物业服务费:3元/㎡/月
住宅专项维修资金:0.5元/㎡/月
THE END




