北京怀柔区科荟雅园共有房户型信息一览
申购时间:2020年12月2日上午10:00至12月16日下午17:00
申购指南:
户型图

A户型
建筑面积:约86.90平方米
注:实际面积以最终测绘面积为准
户型位置:4#、7#住宅楼二单元
A'户型
建筑面积:约87.03平方米
注:实际面积以最终测绘面积为准
户型位置:1#、4#、7#住宅楼二单元
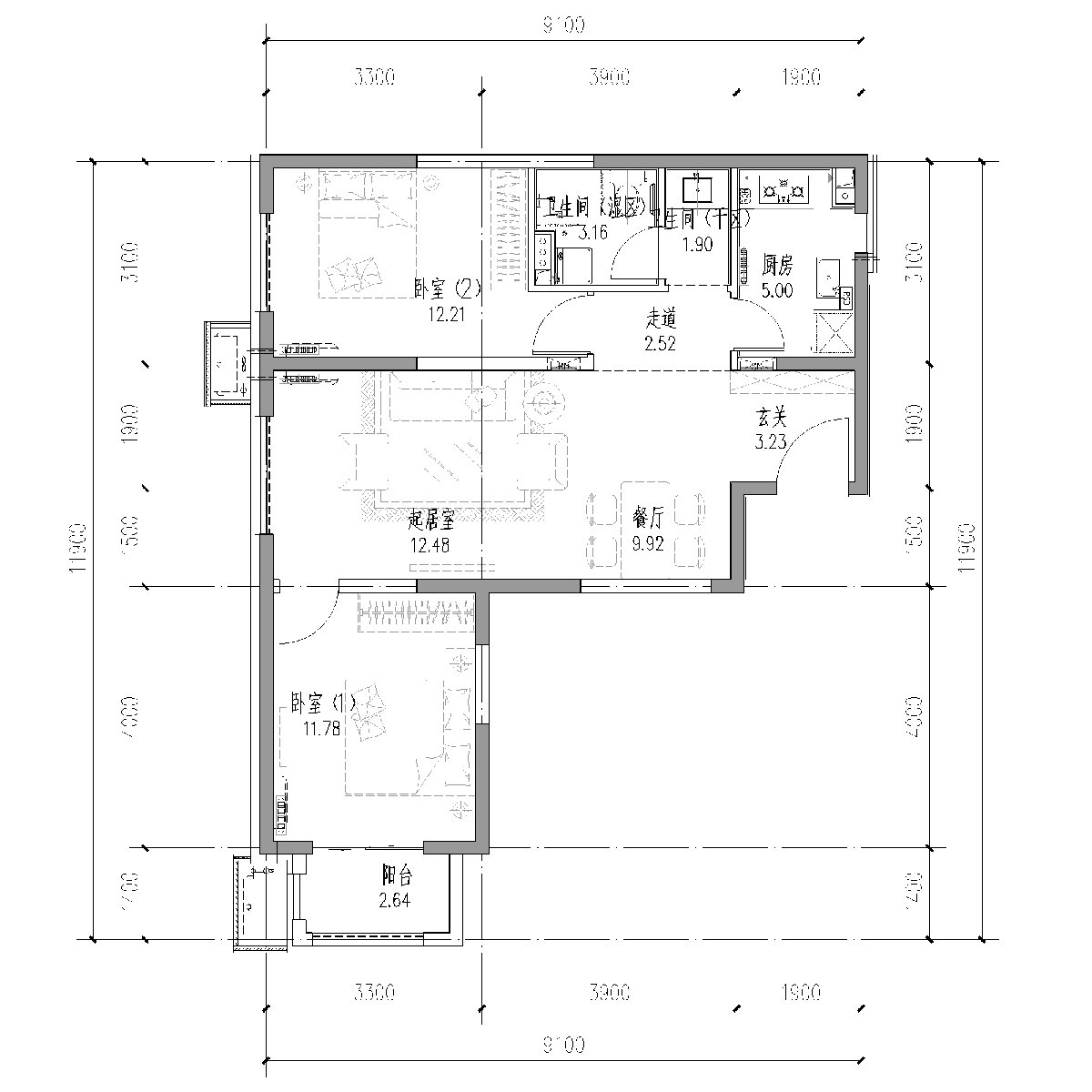
B户型
建筑面积:约85.49平方米
注:实际面积以最终测绘面积为准
户型位置:1#、2#、3#、4#、5#、6#、7#、8#住宅楼一、二单元。
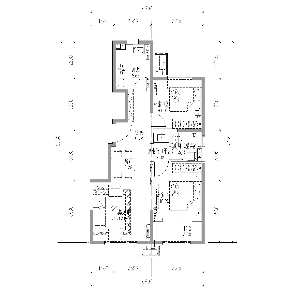
B'户型
建筑面积:约72.41平方米
注:实际面积以最终测绘面积为准
户型位置:1#、2#、6#住宅楼一、二单元首层。
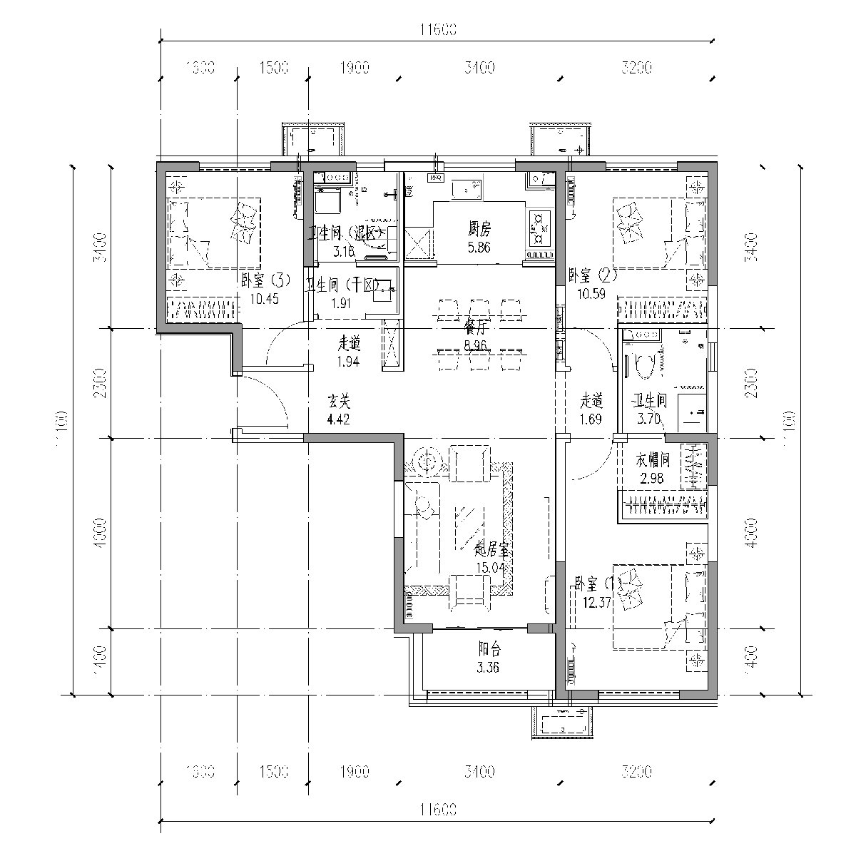
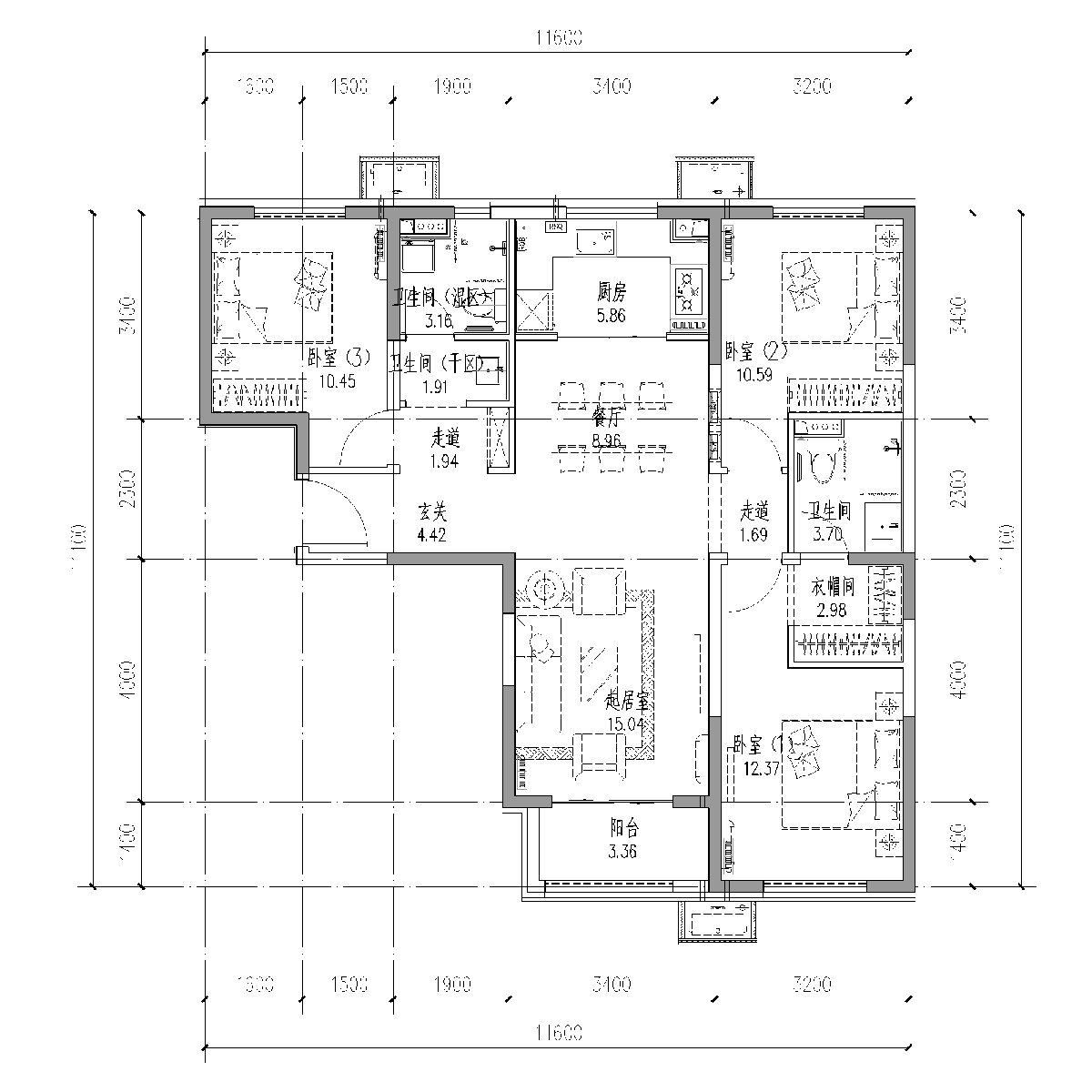
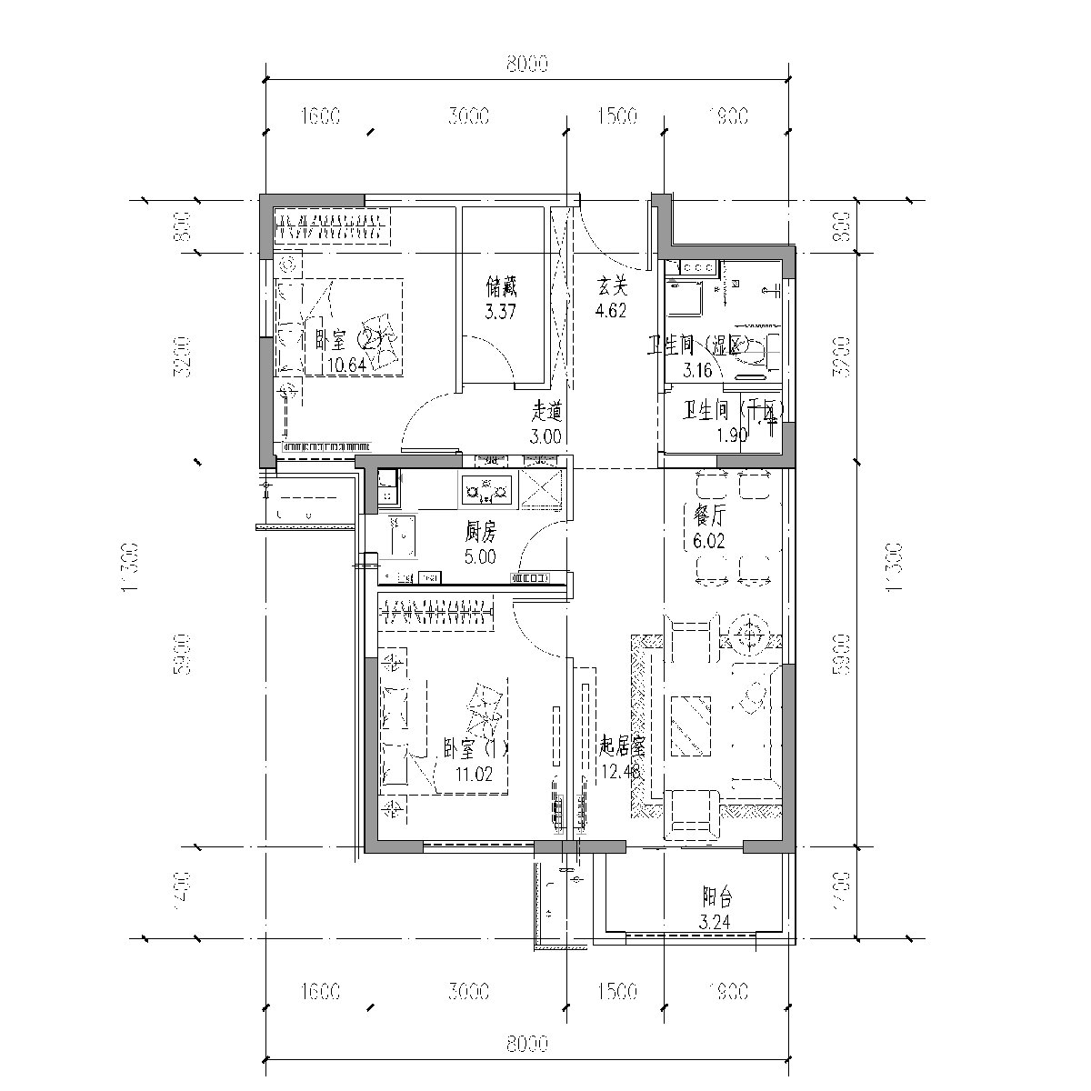
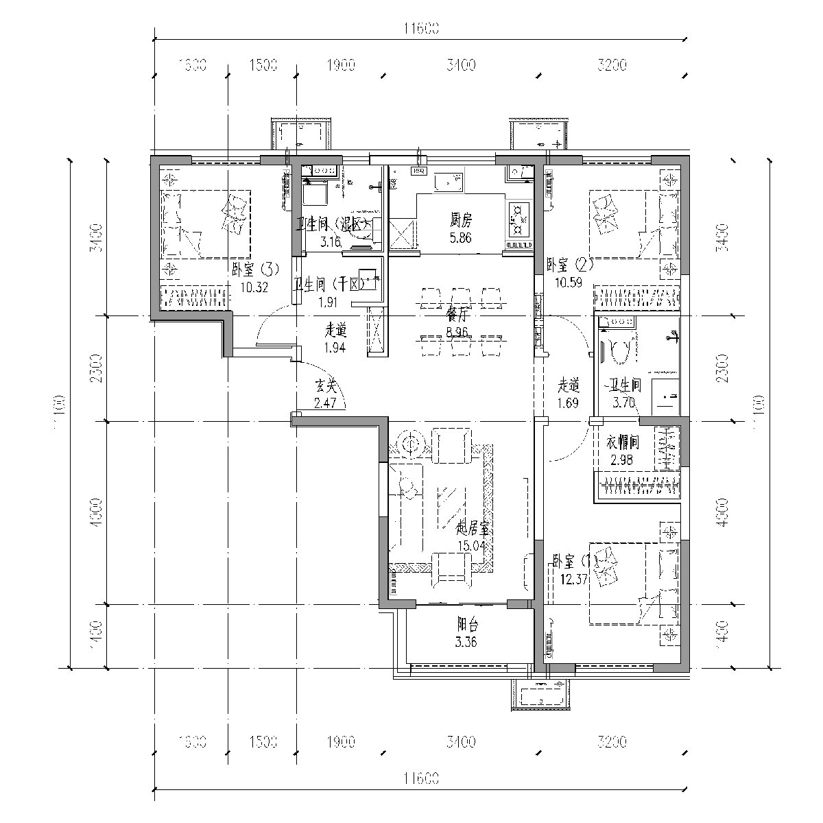
C户型
建筑面积:约115.62平方米
注:实际面积以最终测绘面积为准
户型位置:1#、2#、3#、4#、5#、6#、7#、8#住宅楼一、二单元。
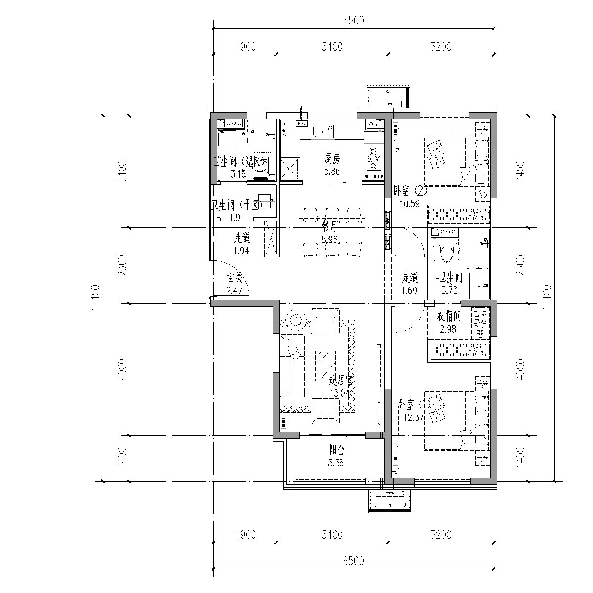
C'户型
建筑面积:约98.91平方米
注:实际面积以最终测绘面积为准
户型位置:3#、4#、5#、7#、8#住宅楼一、二单元首层。
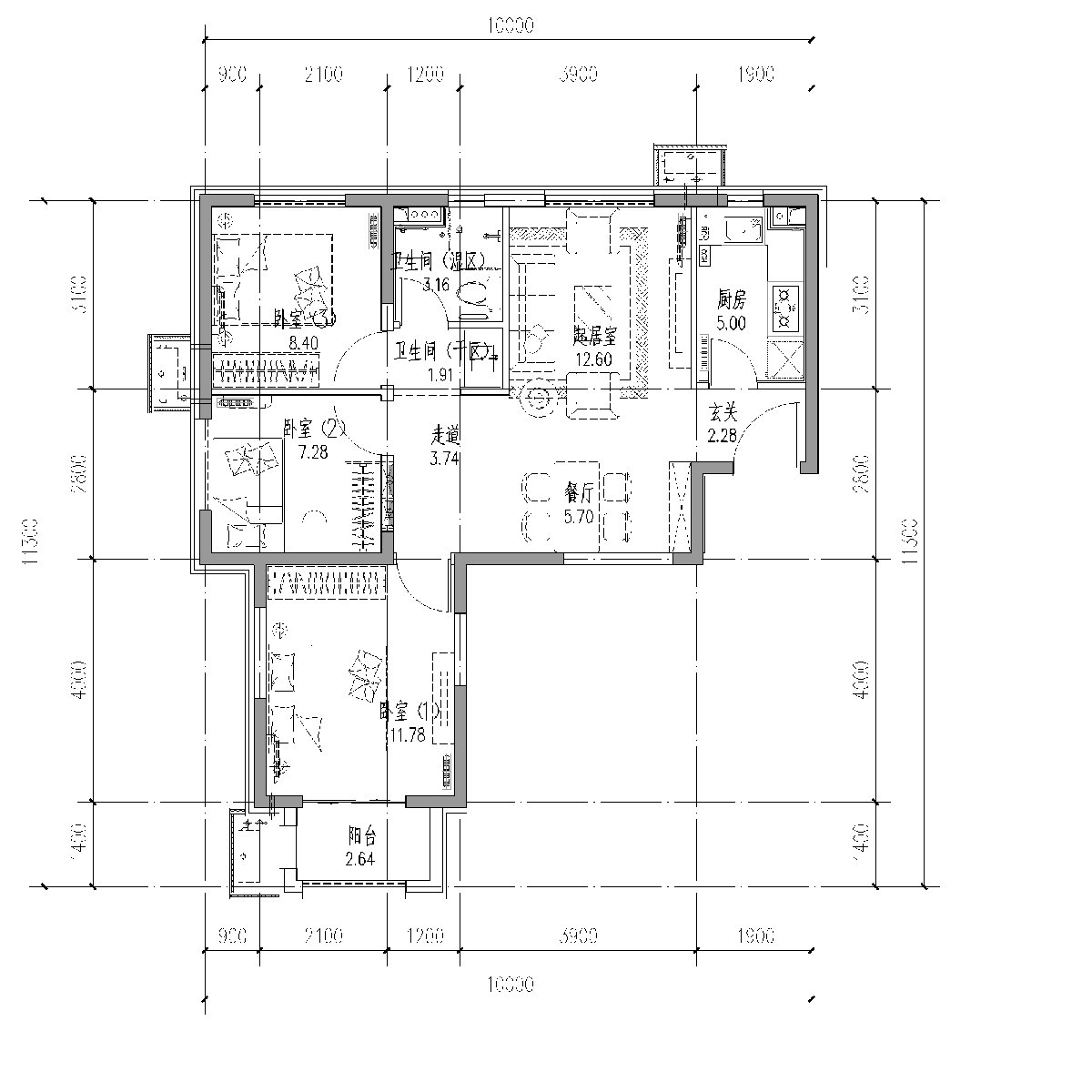
C''户型
建筑面积:约112.71平方米
注:实际面积以最终测绘面积为准
户型位置:1#、2#、6#住宅楼一、二单元首层。
C'''户型
建筑面积:约115.62平方米
注:实际面积以最终测绘面积为准
户型位置:2#、8#住宅楼一单元。
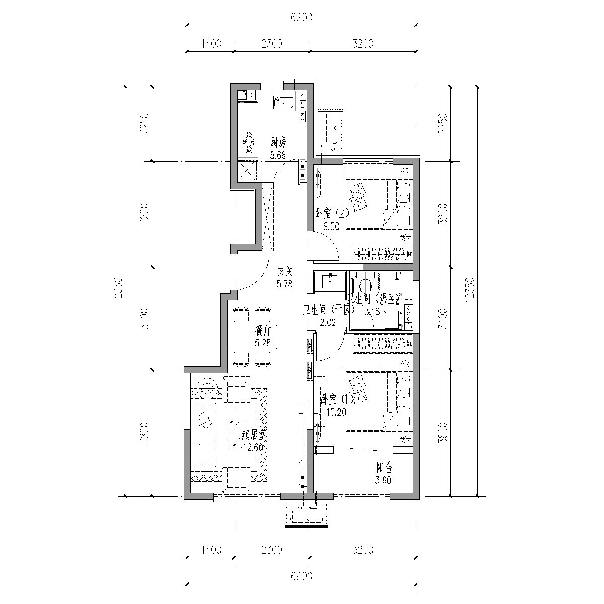
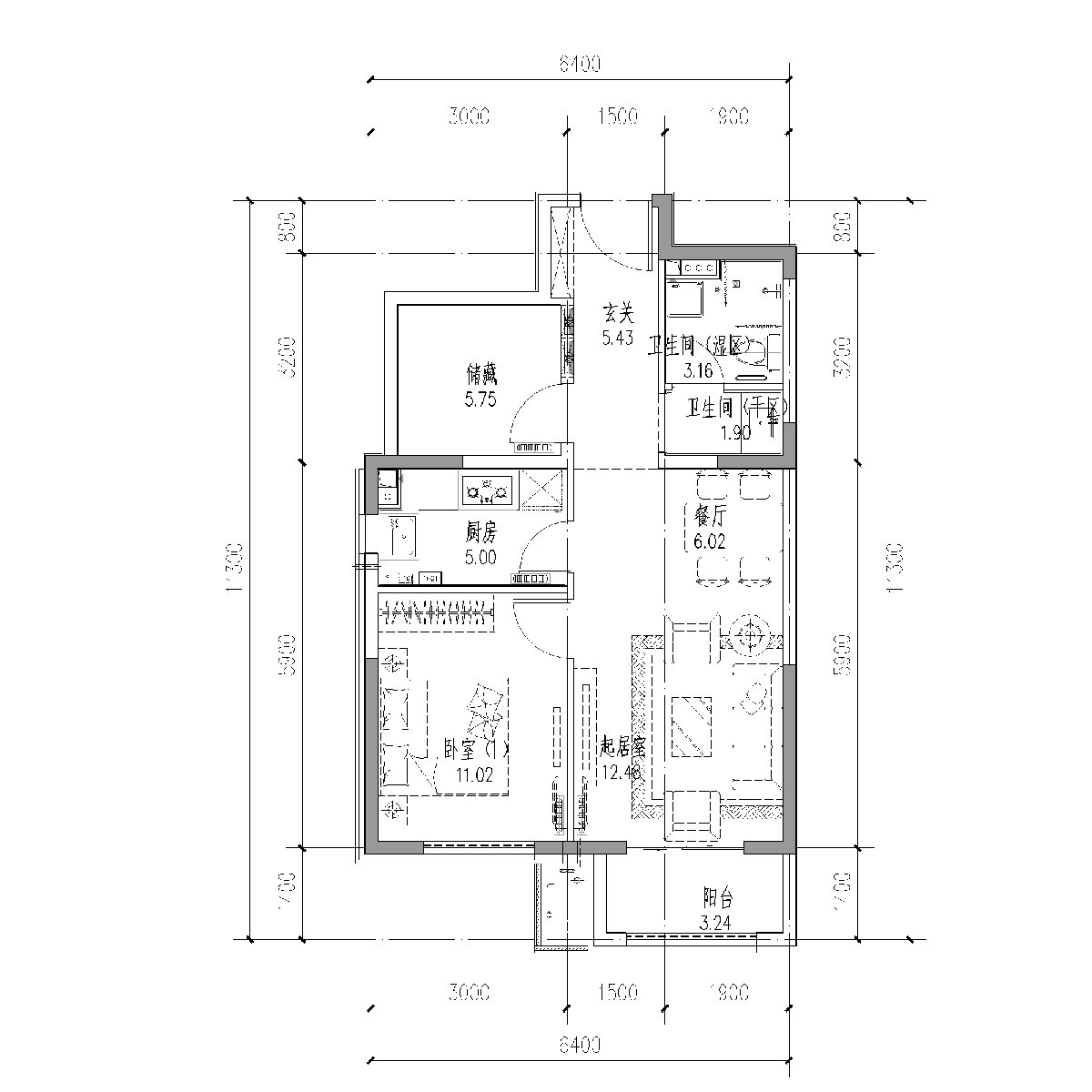
D户型
建筑面积:约86.56平方米
注:实际面积以最终测绘面积为准
户型位置:4#、7#住宅楼三、四单元。
D'户型
建筑面积:约86.56平方米
注:实际面积以最终测绘面积为准
户型位置:4#、7#住宅楼四单元。
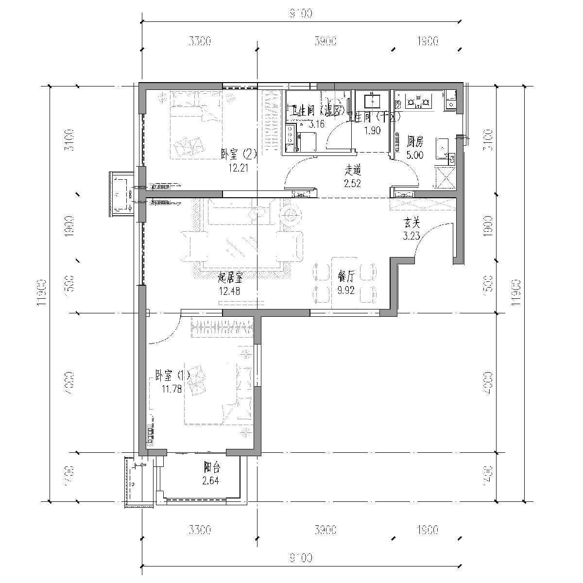
E户型
建筑面积:约87.18平方米
注:实际面积以最终测绘面积为准
户型位置:1#、4#、7#住宅楼一单元,2#、3#、5#、6#、8#住宅楼一、二单元。




