首页 > 百科 > 地方特产

杭州三塘公寓公租房户型图一览 杭州三塘公寓公租房户型图一览

来源: 更新时间:2023-04-10 16:44:37
The Beginning

  杭州三塘公寓公租房户型图 I2a育儿早教网

  以下图源于:杭州住保房管官网,仅供参考,以实物为准I2a育儿早教网

   I2a育儿早教网

  三塘公寓1单元807,907,1007(仅供参考)I2a育儿早教网

   I2a育儿早教网

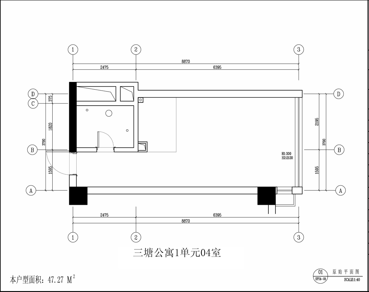
  三塘公寓1单元404,504,704,804,1004(仅供参考)I2a育儿早教网

  [右键“目标另存为”下载原图]I2a育儿早教网

   I2a育儿早教网

  三塘公寓1单元1807(仅供参考)I2a育儿早教网

   I2a育儿早教网

  三塘公寓2单元1001,1005(仅供参考)I2a育儿早教网

   I2a育儿早教网

  三塘公寓3单元1007(仅供参考)I2a育儿早教网

   I2a育儿早教网

  三塘公寓3单元1807(仅供参考)I2a育儿早教网

THE END

TAG:仅供参考  公寓  单元  杭州  右键  

猜你喜欢

相关文章