The Beginning
嵊州市三江街道征地补偿安置公告(嵊征补告〔2022〕8号)如下:
根据《中华人民共和国土地管理法》等有关规定,拟定本次《征地补偿安置方案》。
一、征收目的、范围及土地现状
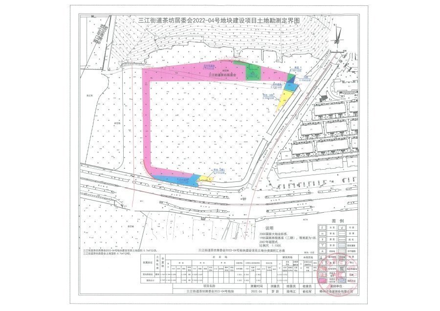
因三江街道茶坊居委会2022-04号地块建设需要,需征收农民集体所有土地0.7647公顷(东至本村沟渠,南至新七路路边,西、北至本村拆迁地)。(详见征地勘测定界图)。

其中,耕地0.039公顷,园地0.0659公顷,农村道路0.0833公顷,水域及水利设施用地0.0062公顷,建设用地0.5703公顷。其他情况详见土地现状调查成果。
二、征收土地补偿标准、安置方式及保障内容
.征地区片综合地价包括土地补偿费和安置补助费。按嵊政[2020]23号文件规定的征地区片综合地价补偿标准进行补偿,具体为:

2.地上附着物和青苗补偿费。按嵊政〔2021〕14号文件规定的地上附着物和青苗补偿标准进行补偿。
3.社保安置。按浙人社发〔2020〕61号、嵊政办〔2021〕104号文件规定执行。参加被征地农民基本生活保障人数共 1 人,被征地单位应按有关规定确认具体参保人数和名单,并办理相关手续。
4.鼓励被征地农民按照嵊州市有关规定参加就业培训。
三、农村村民住宅安置方式及保障内容
1.本次安置按照调产、货币化、迁建安置方式。调产安置参照文件确定;货币化安置参照文件执行;迁建安置面积按照所在地农村宅基地审批标准执行。
2.住宅搬家补贴费、非住宅搬迁补贴费、住宅临时过渡费参照文件规定的标准计发。
四、其他补偿按照文件规定标准予以补偿。
五、土地征收经批准后,由嵊州市人民政府按方案内容组织实施。
嵊州市人民政府
2022年10月21日
THE END




