The Beginning
昌平区青秀尚城公共租赁住房项目基本情况介绍
一、基本信息
楼盘类型:公共租赁住房
项目位置:北京市昌平区南邵镇景兴街25号院
装修标准:精装修
租金单价:26元/建筑平米·月(不分楼层、朝向)
价格说明:租金单价中包含物业费,不包含供暖费、水费、电费、燃气费、电话费、上网费、有线电视初装及收视费等。
供暖方式:小区集中供暖,30元/建筑平方米·供暖季。
房源数量:本次可配租房源共计5套,其中,小套型5套。
户型面积:小套型:36㎡-44.79㎡(零居)
二、项目配套情况
周边交通:公交:643路、326路、870路、884路、昌11路、昌31路、昌32路、昌3路、昌51路、昌59路、昌67路(地铁南邵站),临近地铁昌平线南邵站。
周边公共设施:
教育资源:南邵中心幼儿园、南邵中心小学、南邵中学等
休闲购物:路劲商场、物美超市等
医疗保健:南邵镇卫生院等
休闲娱乐:滨河公园等
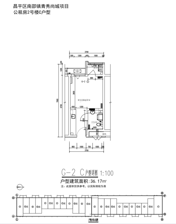
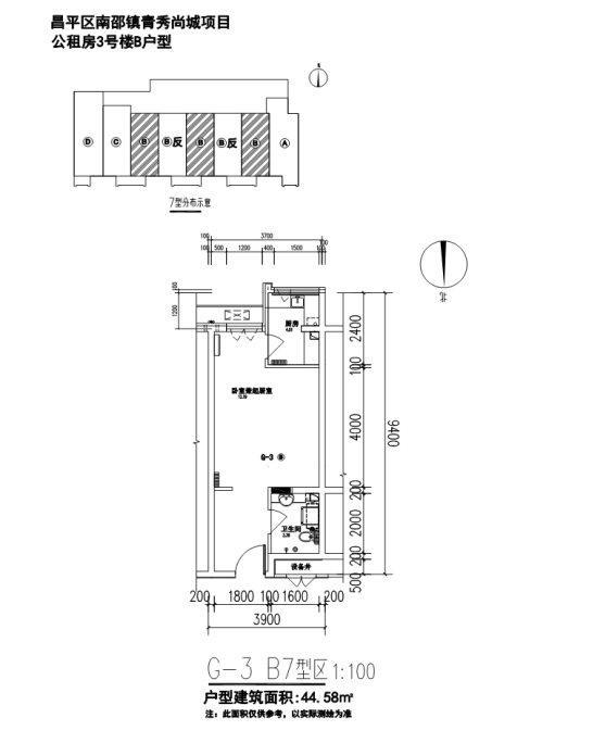
三、户型详细信息
户型介绍:共计3种户型(小套型3种)。
户型示意图如下:
27号楼小套型
22号楼小套型
10号楼小套型
》》
》》
THE END




