2021温州市瓯海区第二批人才住房配售房源
一、房源分布
瓯海区第二批人才住房配售房源共3个项目,总建筑面积35525平方米,总套数312套。分别为:
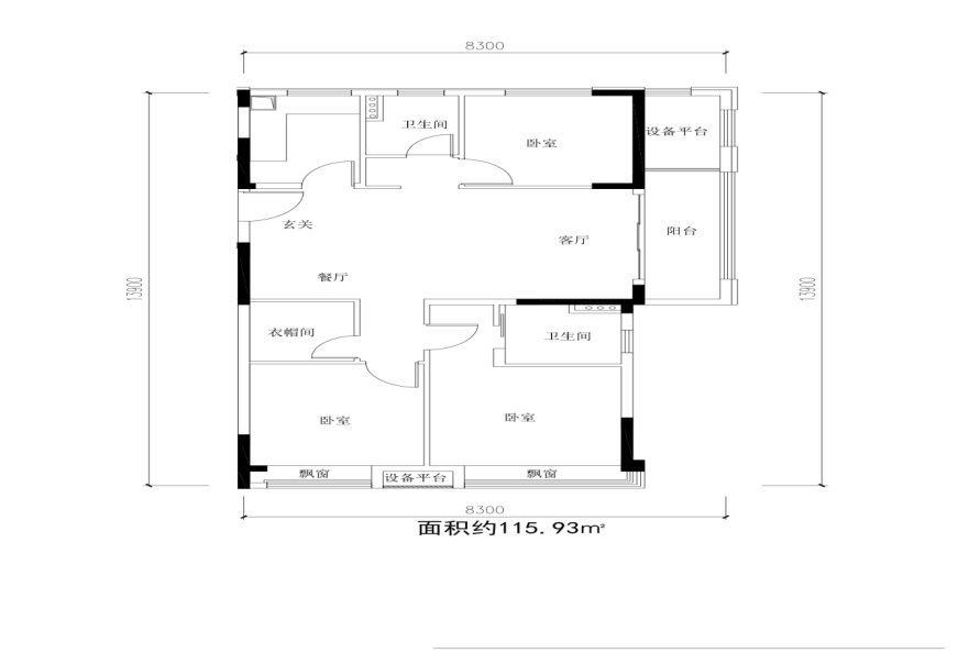
(一)温州市核心片区会昌河单元B-07地块(潮启四季苑一组团)2#楼,建筑面积约10203㎡,套数90套,户型建筑面积为115㎡44套、111㎡44套、106㎡2套共三种户型,该项目由温州市弘麟房地产开发有限公司开发建设,计划于2022年12月15日交付。
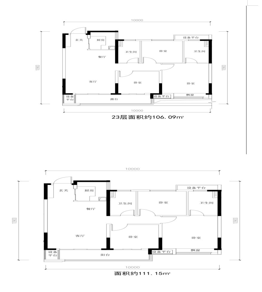
(二)温州市核心片区会昌河单元B-03地块(潮启四季苑二组团)2#楼,建筑面积约10402㎡,套数80套,户型建筑面积为115㎡37套、110㎡43套两种户型, 计划于2022年6月15日交付。
(三)茶白片区梧田南单元B-10地块(龙誉辰园)3#楼,建筑面积约14920㎡,套数142套,户型建筑面积为125㎡37套、98㎡105套共两种户型,该项目由温州龙涛房地产开发有限公司开发建设,计划于2023年6月30日交付。
具体房源信息见下表:
二、优惠价格
(一)申购人按人才层次类别享受相应面积和折扣优惠。B类和C类人才配售面积为140平方米,购买价格为备案价的50%;D类和E类人才配售面积为120平方米,购买价格为备案价的60%;全日制本科等其他类人才配售面积为90平方米,购买价格为备案价的70%。
(二)申购人选购的配售房源户型面积少于申购人所属层次类别配售面积标准时,不再给予任何形式的补差。申购人选购的配售预售商品房房源面积超过申购人所属层次类别配售面积标准的,超出面积部分按照预售方案计收购房款。
(三)申购人选购的配售预售商品房房源面积超过申购人所属层次类别配售面积标准,申购人以办理按揭贷款支付购房款的,超出面积部分享受9.5折优惠;申购人一次性全额支付购房款的,超出面积部分享受9折优惠。
(2)夫妻双方均符合配售条件的,主申购人选购的配售预售商品房房源面积超过申购人所属层次类别配售面积标准的按以下方式计算购房款:配售房源面积未超出主申购人上一层次类别配售面积标准的,超出面积部分按夫妻较低的层次类别折扣标准计收购房款;超出上一层次人才类别配售面积标准的,超出上一层次配售标准面积部分按照预售方案确定的优惠折扣计收购房款。
(3)此项目人才住房为全装修住房,可选择毛坯交付自行装修。装修标准由配售人才按照预售方案明确的装修标准自行选择确定,装修费用由配售人才个人承担。
一房一价表》》点击查看
三、户型图
潮启四季苑一组团2号楼户型图:




